Wykeham Place, Winchester, SO22

  • £425,000
Wykeham Place, Winchester, SO22 4BZ
Sold STC
Wykeham Place, Winchester, SO22
Wykeham Place, Winchester, SO22 4BZ
  • £425,000

Overview

  • 3
  • Bedrooms
  • 2
  • Bathrooms
  • 87
  • Sq M
  • Freehold
  • Tenure

Description

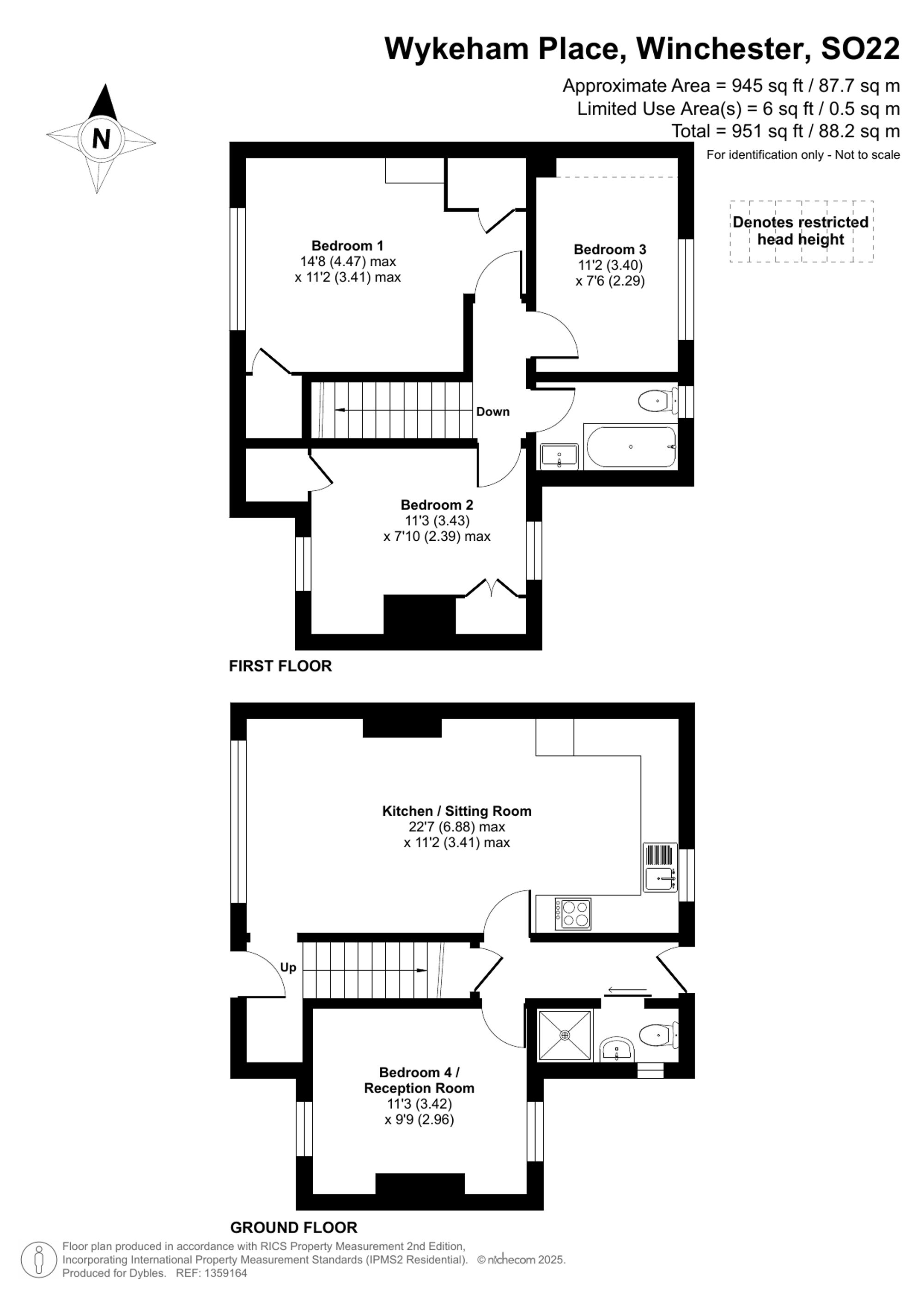
A beautifully presented modern three-bedroom semi-detached home, ideally positioned in the heart of Stanmore, Winchester. The property lies within the highly sought-after King’s School catchment and offers excellent access to Winchester city centre and the mainline train station, making it perfectly suited to both families and professionals.

The accommodation is arranged over two well-designed floors. On the ground floor, the property opens into a welcoming entrance hall with stairs rising to the first floor. This level features a generous open-plan kitchen/sitting room, providing an excellent social and family space, with clearly defined areas for cooking, dining, and relaxing. The kitchen is well laid out with ample worktop and storage space, while the sitting area enjoys good natural light. Also on the ground floor is a versatile additional reception room/bedroom, ideal as a guest bedroom, home office, or snug, along with a convenient shower room.

The first floor offers three well-proportioned bedrooms. The principal bedroom is a spacious double, complemented by two further bedrooms, all arranged around a central landing. A family bathroom serves this floor, finished to a modern standard.

Externally, the property occupies a large corner plot, providing a sense of space and privacy, and benefits from driveway parking. Planning permission available for double story extension, providing exciting scope for further development. The home is stunningly decorated throughout, offering turnkey accommodation in a great residential location.

Tenure: Freehold

Council Tax Band: C

Utilities: Mains connected to Electric, Water, Waste & Gas Heating

Floor Plans

image

Description:

  • City Winchester
  • Post Code SO22 4BZ
  • Area Winchester

Energy Class

  • Energetic class: D
  • EPC Current Rating: 61.0
  • EPC Potential Rating: 81.0
  • A+
  • A
  • B
  • C
  • | Energy class D
    D
  • E
  • F
  • G
  • H

Compare listings

Compare