Plough Way, Winchester, SO22

  • In Excess of £325,000
Plough Way, Winchester, SO22 4PX
Sold STC
Plough Way, Winchester, SO22
Plough Way, Winchester, SO22 4PX
  • In Excess of £325,000

Overview

  • 2
  • Bedrooms
  • 1
  • Bathroom
  • Freehold
  • Tenure

Description

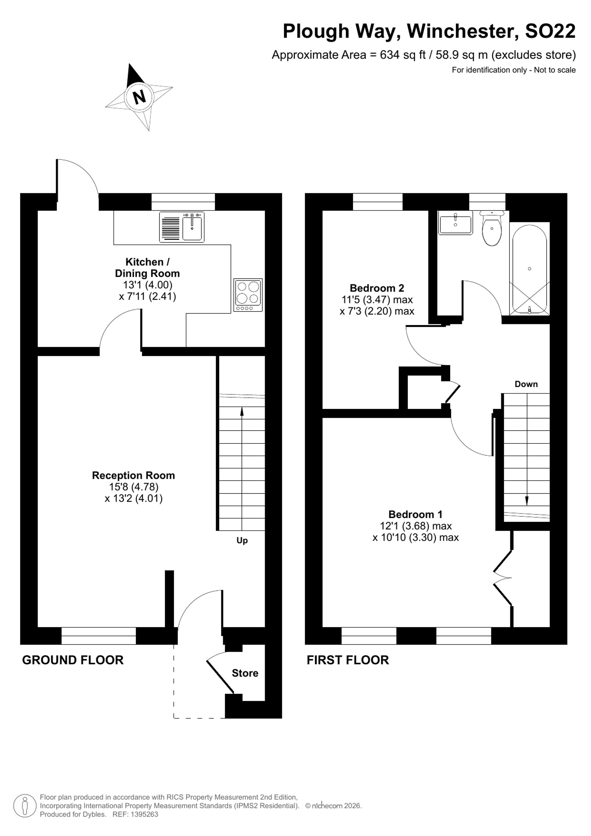
This attractive two bedroom, mid terrace home is ideally situated in the popular Badger Farm area of Winchester and is presented to a tasteful standard throughout, offering ease and comfort for a prospective purchaser.

The ground floor features a stylish and well proportioned lounge, providing a welcoming living space, alongside a modernised kitchen/dining room that creates a fantastic social hub for everyday living and entertaining. The layout flows well and makes excellent use of the available space.

To the first floor are two well sized bedrooms, both served by a contemporary family bathroom. The accommodation is well balanced and would suit a range of buyers, including first-time purchasers, professionals, or those looking to downsize.

Externally, the property benefits from a private rear garden, ideal for outdoor dining, entertaining, or simply relaxing.

Located within easy reach of local amenities, schools, and transport links, this well-presented home combines convenience with comfortable living. Early viewing is strongly advised to avoid disappointment.

Additional Information

Tenure: Freehold

Council Tax Band: C

Utilities: Mains connected to Electric, Water, Waste & Gas Heating

Parking: Owned Parking space

EPC Rating: C

Floor Plans

image

Description:

  • City Winchester
  • Post Code SO22 4PX
  • Area Winchester

Energy Class

  • Energetic class: C
  • EPC Current Rating: 72.0
  • EPC Potential Rating: 87.0
  • A+
  • A
  • B
  • | Energy class C
    C
  • D
  • E
  • F
  • G
  • H

Compare listings

Compare