Ebden Road, Winchester, SO23

  • £2,100/pcm
Ebden Road, Winchester, SO23 0NF
Let Agreed
Ebden Road, Winchester, SO23
Ebden Road, Winchester, SO23 0NF
  • £2,100/pcm

Overview

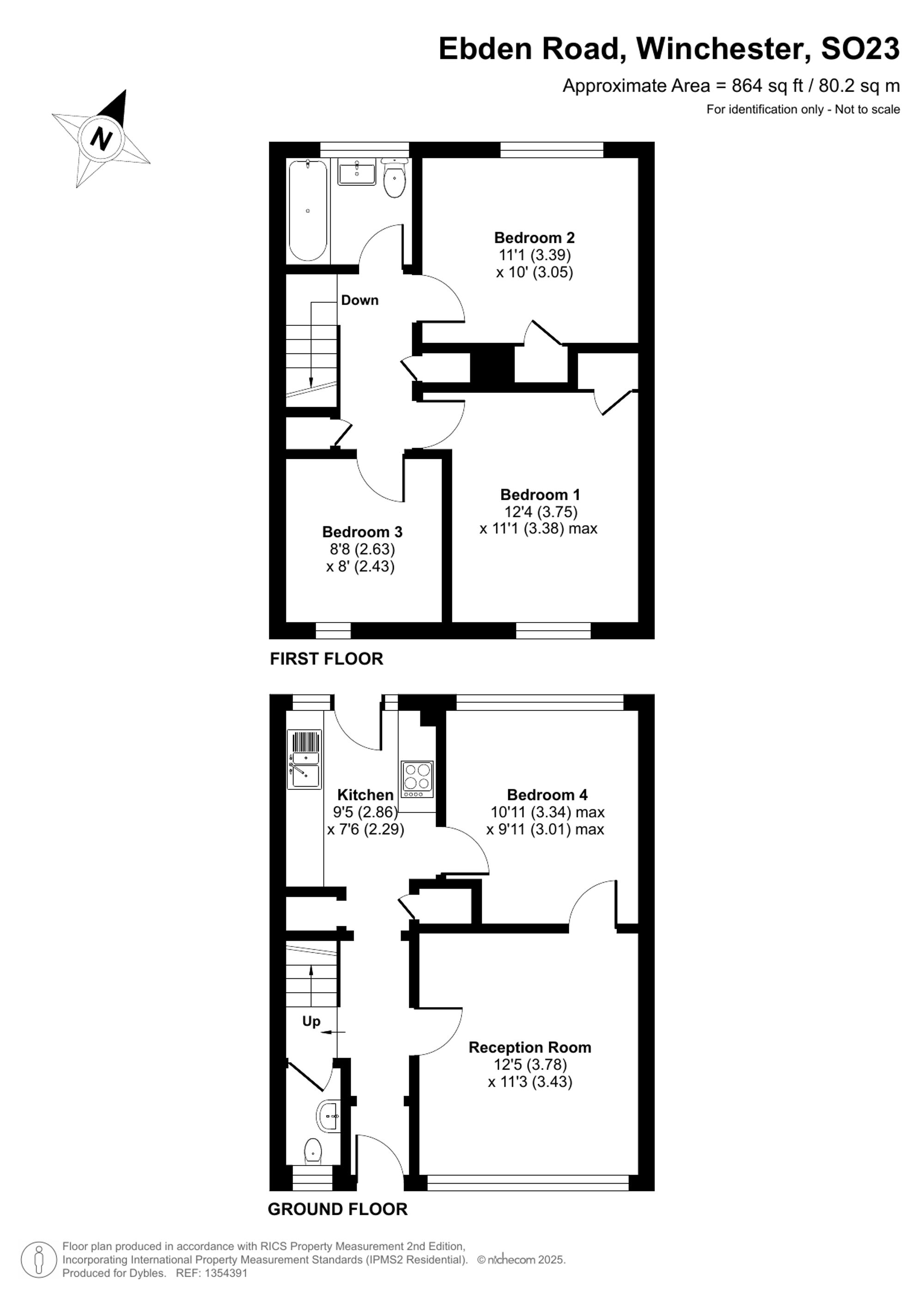
  • 4
  • Bedrooms
  • 1
  • Bathroom
  • 80
  • Sq M

Description

Fantastic four bedroom student house located within an excellent location just moments from Winchester town centre and WSA. Four double bedrooms, modern kitchen and bathroom, downstairs W.C. and spacious lounge. Driveway parking. GARAGE NOT INCLUDED

Floor Plans

image

Description:

  • City Winchester
  • Post Code SO23 0NF
  • Area Winchester

Energy Class

  • Energetic class: E
  • EPC Current Rating: 47.0
  • EPC Potential Rating: 77.0
  • A+
  • A
  • B
  • C
  • D
  • | Energy class E
    E
  • F
  • G
  • H

Compare listings

Compare